SISTEME DE ALUMINIU YAWAL
Yawal este unul dintre principalii furnizori de sisteme arhitecturale de profile din aluminiu din Polonia: ferestre, usi, fatade, pereti cortina si pereti despartitori, balustrade si paravane de protectie solara. Sistemele sunt proiectate de experti, rezultand in constructii ecologice si eficiente din punct de vedere energetic.
SISTEME DE USI GLISANTE CU RIDICARE SI GLISANTE
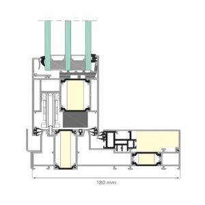
SISTEMUL DP 180
DP 180 este un sistem utilizat pentru fabricarea ferestrelor si usilor glisante cu ridicare pentru instalare in exterior.
Produsul este destinat utilizarii atat in cladirile rezidentiale cat si cele de utilitate publica.
Latimea si inaltimea canatului usii poate ajunge pana la 3300 mm, cu o greutate a canatului de pana la 430 kg. Suprafetele vitrate mari sunt semnul distinctiv al constructiilor moderne. Panourile din sticla fixate cu profile de aluminiu confera usurinta fiecarei constructii. Acest lucru va permite sa obtineti o bariera transparenta, care, in ciuda transparentei sale, asigura o protectie sigura si bine gandita impotriva frigului, vantului, ploii sau soarelui.
Sistemul DP 180 este, de asemenea, castigatorul concursurilor IRBS 2019 si TopBuilder 2019.
Caracteristici
Izolare termica excelenta
Posibilitatea de executare a unei conexiuni pe colt in totalitate din sticla sub un unghi de 90˚
Posibilitatea de executare a usii fara prag - fara bariere arhitecturale
Parametri foarte buni de etanseitate la apa si permeabilitate la aer
Posibilitatea instalarii unui sistem automat de deschidere si inchidere a usii
Posibilitatea de utilizare a unor fitinguri cu micro-ventilatie
Posibilitatea montarii materialului de umplutura din exterior
Posibilitatea imbinarii fara probleme a geamurilor din sticla
Stalp de colt mobil
Date tehnice
Latimea profilelor Toc: 180 mm, Canat: 81 mm
Grosimea umplerii 18÷62 mm
Etansamente EPDM, TPE
Greutatea canatului max. 440 kg
Inaltimea canatului max. 3300 mm
Latimea canatului max. 3300 mm
Permeabilitatea aerului clasa 4 conf. PN-EN 12207
Rezistenta la apa clasa E1350 conf. PN-EN 12208
Rezistenta la vant clasa C3 conf. PN-EN 12210
Coeficient de conductivitate termica Uw de la 0,8 W/m2K, Uf de la 1,1 W/m2K
Media
SISTEMUL L 50
Sistem de profile din aluminiu care permite proiectarea si executarea de segmente culisante pentru balcoane si loji (L 50B), precum si segmente culisante pentru pereti despartitori (L 50S).
Peretii despartitori vitrati sunt neinflamabili si au fost clasificati drept constructii ignifuge (NRO). Sistemul L 50 consta din profile din aluminiu cu o singura camera, fara insertie termica. Deplasarea canatelor are loc pe carucioare special adaptate. Datorita cadrului folosit, este posibila prefabricarea structurii pe o sina dubla sau tripla.
Caracteristici
Sporirea sigurantei si confortului utilizatorilor incaperilor
Limitarea patrunderii zgomotului din exterior in incapere
Protectie impotriva conditiilor meteo
Posibilitatea utilizarii diferitelor tipuri de materiale de umplere
Posibilitatea de combinare cu alte sisteme Yawal
Izolare fonica imbunatateste izolatia ferestrelor cu 22 dB conf. PN-87/B-02151/03
Date tehnice
Adancimea structurala Profilul ramei 77,4 mm
Profilul canatului 50 mm - cu doua sine si 89,5 mm - cu trei sine
Canat orizontal 77,4 mm si Canat vertical 96 mm
Inaltime/latime vizibila Profilul inferior al cadrului usii 37 mm
Clasa de rezistenta la foc NRO
Inaltimea benzii de geam 20 mm, Grosimea geamului 4÷18 mm
Media
SISTEMUL DP 150T
Sistemul DP 150T permite constructia usilor glisante cu ridicare. Profilele din aluminiu pentru acest sistem sunt proiectate astfel incat sa asigure performante ridicate de izolare termica.
Sistemul DP 150T permite realizarea structurilor de pana la 3300 mm inaltime cu o greutate a canatului pana la 430 kg. Elementele de ridicare si alunecare ofera confort si usurinta de utilizare chiar si in cazul unor canate mari si grele. Acest tip de usa este folosit ca perete despartitor extern, ca iesire pe terasa si ca usa in sere.
Caracteristici
Posibilitatea de utilizare a geamurilor foarte mari
Posibilitatea de utilizare a diferitelor tipuri de materiale de umplere
Posibilitatea crearii constructiilor spatiale
Posibilitatea de combinare cu alte sisteme Yawal
Date tehnice
Inaltime/latime vizibila Profilul inferior al cadrului usii 44 mm si Profilul superior al cadrului usii 22 mm
Inaltime/latime vizibila Profilul canatului 103,5 mm
Adancimea structurala Profilul ramei 150 mm/234 mm si Profilul canatului 66 mm
Inaltimea benzii de geam 22 mm si Grosimea geamului 8÷50 mm
Parametri Tehnici
Permeabilitatea aerului
clasa 4
(PN-EN 12207)
Rezistenta la apa
clasa 9A
(PN-EN 12208)
Izolare fonica
Rw = 42 dB
PN-EN ISO 10140-3
Rezistenta la efractie
RC2
Rezistenta la vant
C3
PN-EN 12210
Coeficient de conductivitate termica
Uf de la 1,2 W/m2K
Media
SISTEMUL DP 100
Usile glisante si cele glisante cu ridicare sunt o solutie economica pentru placarea cladirilor in exterior.
Sistemul DP 100 este o solutie moderna cu parametri de inalta calitate, la baza carora sunt profilele din aluminiu cu insertie termica.
Caracteristici
Posibilitatea de utilizare a diferitelor tipuri de materiale de umplere
Solutii economice
Posibilitatea de utilizare a constructiilor cu doua si trei sine
Posibilitatea de combinare cu alte sisteme Yawal
Date tehnice
Inaltime/latime vizibila Profilul inferior al cadrului usii 39 mm si Profilul superior al cadrului usii 27 mm
Inaltime/latime vizibila Profilul canatului 96 mm
Adancimea structurala Profilul ramei 103,2 mm/163,8 mm si Profilul canatului 42,6 mm
Inaltimea benzii de geam 22 mm si Grosimea geamului 14÷28 mm
Parametri Tehnici
Permeabilitatea aerului
clasa 4
(PN-EN 12207)
Rezistenta la apa
clasa 9A
(PN-EN 12208)
Rezistenta la vant
C2
PN-EN 12210
Coeficient de conductivitate termica
Uf = de la 2,6 W/m2K











